Byt 2kk Loft, Holšovice
Praha 7, V Háji 1092
10 990 000 CZK
| Cena | 10 990 000 CZK |
| Typ | 2+kk |
| Užitná plocha | 64 m2 |
| Terasa | 19.00 m2 |
| Sklep | 3.00 m2 |
| parkovací stání | 1 |
| Patro | 1/7 |
| Vzdálenost | 2 minut autem |
| Metro | Palmovka |
| Autobusová zastavka | Maniny |
| Tramvajová zastávka | Maniny |
-
Marat Batyrbayev
-
420608364608
Telefon
-
batyrbayev@brigerd.cz
E-mail
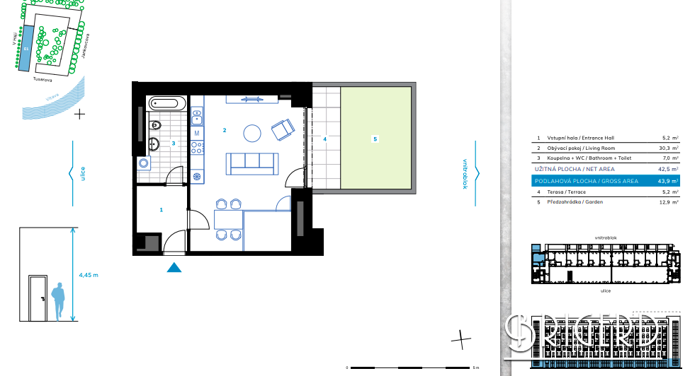
Realitní kancelář Brigerd nabízí k prodeji dvoupodlažní byt ve stylu Loft 2+kk o ploše 64 m2 v novostavbě So-Ho rezidence. Výška stropu v Loftu je 4,5 metru. K dispozici terasa a předzahrádka 18m2. Byt má velká francouzská okna na celou stěnu. Okna jsou orientována do vnitrobloku rezidence s vlastním parkem. V přízemí je obývací pokoj s kuchyní 37m2 a koupelna 6m2. Ve druhém patře ložnice 18m2.
Pulzující atmosféra jižních Holešovic nabízí kulturní vyžití i trendy kavárny a bistro bary. Výborná dostupnost pěšky, na kole nebo tramvají do Karlína, Stromovky a centra města nevyžaduje auto. Byty disponují chytrou technologií Loxone. Do prvního patra budovy se přestěhuje oblíbená Naše Tostarna a vznikne zde nový fitness a wellness koncept od Form Factory.
Dokončení 1. etapy je naplánováno na 4. čtvrtletí roku 2023, předání bytu je plánováno na začátek roku 2024.
V ceně bytu je parkovací stání a sklep. Na výběr jsou také 4 loftové apartmány.