Byt 2+kk, 49m2, Tulipa City

Praha 9, Kolbenova

Prodáno

Cena 4 000 000 CZK
Typ 2+kk
Užitná plocha 49 m2
Balkon 6.20 m2
Patro 2
Vzdálenost 15 minut autem
Metro Kolbenova
Tramvajová zastávka Kolbenova
  • Marat Batyrbayev

  • Telefon

    420608364608
  • E-mail

    batyrbayev@brigerd.cz

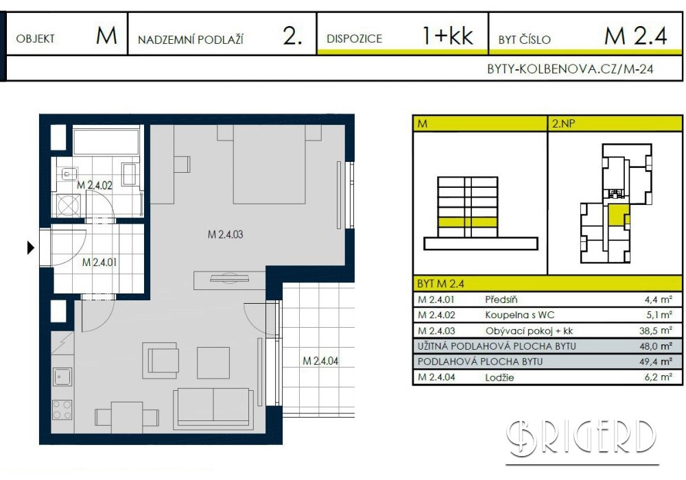
Společnost BRIGERD nabízí k prodeji byt o dispozici 1+kk(2+kk) s lodžie ve velmi oblíbeném projektu Tulipa City kousek od metra Kolbenova. Samotný byt leží v 2.NP cihlové novostavby a podlahová plocha bytu je 49,4 m2.

Byt se skládá z prostorné vstupní předsíně (4,4m2) s místem pro úložné prostory, koupelny s vanou a toaletou (5,1 m2) a velkým obývacím pokojem s kuchyňským koutem (38,5 m2), lodžie (6,2 m2). Byt se da rozdělit jedou příčkou na 2+kk.

Byt bude k nastěhování v červenci 2018.

Výborná dopravní dostupnost, metro, bus i tramvaj cca 3 minuty chůze. Nedaleko nákupní centrum Fénix, školky, restaurace, dětská hřiště, park Podvinní, atd

Cena bytu 4 000 000Kč včetně provize a právního servisu. Pro více informací kontaktujte realitního makléře.

Praha 9, Kolbenova

Napište nám