Квартира 2+кк, 49м2, Vršovice

Praha 10, Orelska

Продано

Цена 5 479 000 CZK
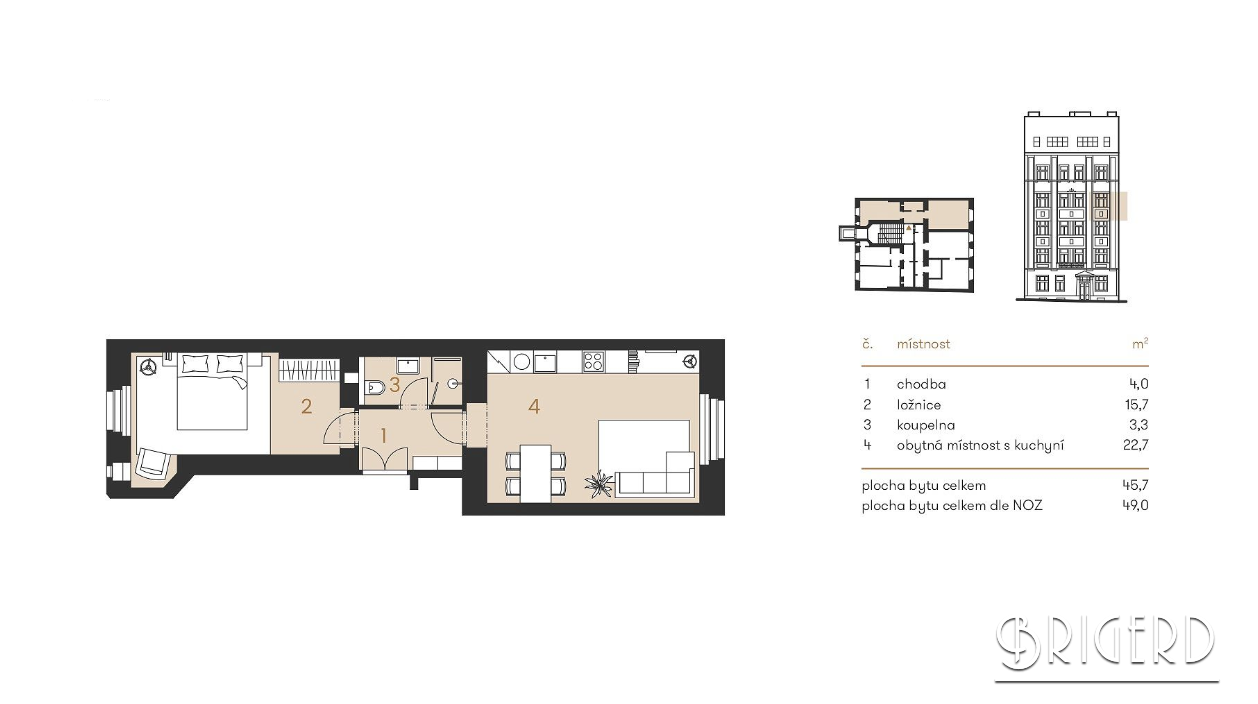
Планировка 2+kk
Площадь 49 m2
Кладовая 1.00 m2
Этаж 4
Удаленность 10 минут на автомобиле
Остановка метро I.P. Pavlova
Автобусная остановка Čechovo náměstí
Трамвайная остановка Čechovo náměstí
  • Marat Batyrbayev

  • Телефон

    420608364608
  • E-mail

    batyrbayev@brigerd.cz

Агентство недвижимости Brigerd предлагает на продажу квартиру 2+кк площадью 49 м2 на 4 этаже нового уникального проекта в центре Праги – Резиденция «Орелска». Окна гостиной выходят на улицу, окна спальни – в зеленый внутренний двор, предназначенный для жителей дома.

Дом в стиле модерн 1911 года прошел полную реконструкцию. Проект находится в привлекательном районе в расширенном центре города – Вршовице (Vršovice), Прага 10. Здесь вы найдете множество модных кафе, ресторанов, парков. Несмотря на пульсирующий характер района, сама резиденция находится в довольно тихой и уютной улочке.

Большинство квартир продается с минимальной отделкой white walls («побеленные стены»), что дает возможность хозяевам докончить ремонт квартиры по собственному усмотрению.  В цену также входит кладовая. Квартиры в Резиденции «Орелска» отлично подойдут не только молодым людям, но и семьям с детьми. В районе отличная инфраструктура для всех возрастных групп.

Praha 10, Orelska

Напишите нам