Квартира 1+кк, 38m², Tulipa City

Praha 9, Strnadovych 1008/7

Продано

Цена 3 650 000 CZK
Планировка 1+kk
Площадь 38 m2
Балкон 5.50 m2
Кладовая 1.00 m2
парковка 1
Этаж 2
Остановка метро Kolbenova
  • Marat Batyrbayev

  • Телефон

    420608364608
  • E-mail

    batyrbayev@brigerd.cz

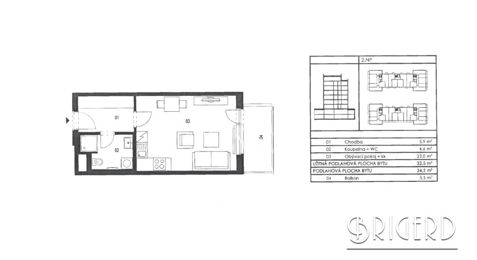
Компания ВRIGERD предлагает квартиру 1+КК 38m² с балконом в новом жилом комплексе «Тулипа Сити» в районе Высочаны - Прага 9 в пешей доступности от метро.  Квартира расположена на 2 этаже резиденции и ориентирована в парк. Из прихожей (5,9 m²) Вы можете попасть в  гостиную с кухонным уголком  (22 m²) и выходом на балкон (5,5 m2), а также в ванную с туалетом (4,6 m2). Кроме того,  в цену входит парковочное место в гараже и кладовка.

«Тулипа Сити» - это современное жилье в районе с хорошей инфраструктурой в непосредственной близости от станции метро Колбенова, откуда можно добраться до центра города  всего лишь за 15 минут. Рядом находятся торговый центр Fenix ​​(одна остановка на метро или 3 минуты на трамвае) и  Harfa. В нескольких минутах ходьбы есть детский сад и начальная школа, банки и банкоматы, рестораны и многое другой  Любители спорта и отдыха по достоинству оценят близлежащий парк Подвини , велосипедную дорожку и бассейн в соседних районах Глубетин или Летняны.  Окончание строительства - лето 2019 года.

Отличная транспортная доступность. В 5 минутах ходьбы от метро Kolbenova и трамвайной остановки. 10 минут на метро до центра.

В стоимость квартиры входит парковочное место и кладовка.

Цена квартиры 3 605 000 крон включая все расходы, связанные с оформлением.

Praha 9, Strnadovych 1008/7

Напишите нам