Квартира 1/2+kk, 49м2, Tulipa City

Praha 9, Kolbenova

Продано

Цена 4 000 000 CZK
Планировка 2+kk
Площадь 49 m2
Балкон 6.20 m2
Этаж 2
Удаленность 15 минут на автомобиле
Остановка метро Kolbenova
Трамвайная остановка Kolbenova
  • Marat Batyrbayev

  • Телефон

    420608364608
  • E-mail

    batyrbayev@brigerd.cz

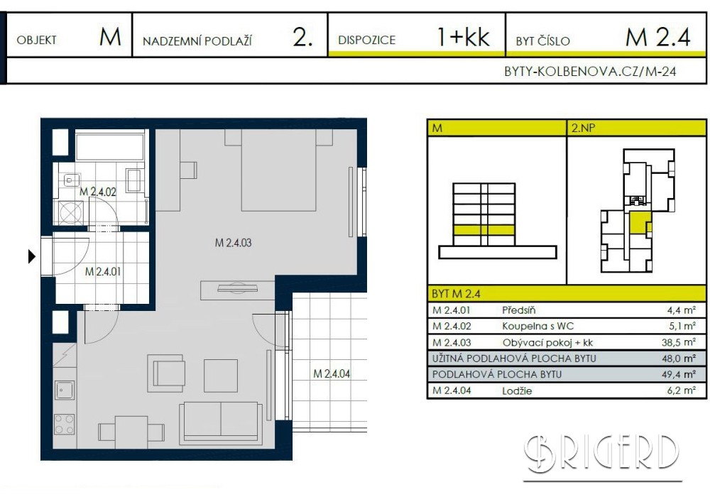
Продается уже готовая квартира  1/2+кк 49м2 с лоджией 6,2 м2 на 2 этаже нового жилого комплекса «Тулипа Сити», расположенного в районе Высочаны - Прага 9, в пешей доступности от станции метро Колбенова (Kolbenova).  Особенность квартиры заключается в том, что при желании ее можно легко переделать в полноценную «двушку» - 2+кк. И все благодаря удачной планировке: гостиной с кухонным уголком (38,5м2), плавно переходящей в спальную зону под углом 90 градусов. Спальня легко отделяется перегородкой от гостиной, превращаясь в отдельную комнату. Вход в ванную команту (5,1м2) осуществляется из прихожей (4,4м2). Попасть на лоджию (6,2м2) можно из зоны гостиной/столовой.

«Тулипа Сити» - это современное жилье в районе с хорошей инфраструктурой, в непосредственной близости от станции метро Колбенова, откуда можно добраться до центра города  всего лишь за 15 минут. Рядом находятся ТЦ Fenix ​​(одна остановка на метро или 3 минуты на трамвае) и ТЦ Harfa. В нескольких минутах ходьбы находятся детский сад и начальная школа, банки и банкоматы, рестораны и многое другое.  Любители спорта и  активного отдыха по достоинству оценят парк Подвини. В соседних районах Глоубетин и Летняны расположены велосипедные трассы и бассейны. 

Квартира будет готова к заселению в июле 2018 года. Комунальные платежи составляют 2 033 чешских крон.

Отличная транспортная доступность: 5 минут ходьбы до станции метро Kolbenova и трамвайной остановки, 15 минут на метро до центра города.

Цена квартиры 4.000.000 Чешских крон.

Praha 9, Kolbenova

Напишите нам