Квартира 2+kk, 50.6м2, Střížkov

Praha 8, Střížkovská 3/110

Продано

Цена 4 750 000 CZK
Планировка 2+kk
Площадь 50.6 m2
Балкон 5.40 m2
Этаж 4/5
Удаленность 15 минут на автомобиле
Остановка метро Střížkov
Автобусная остановка Střížkov
  • Marat Batyrbayev

  • Телефон

    420608364608
  • E-mail

    batyrbayev@brigerd.cz

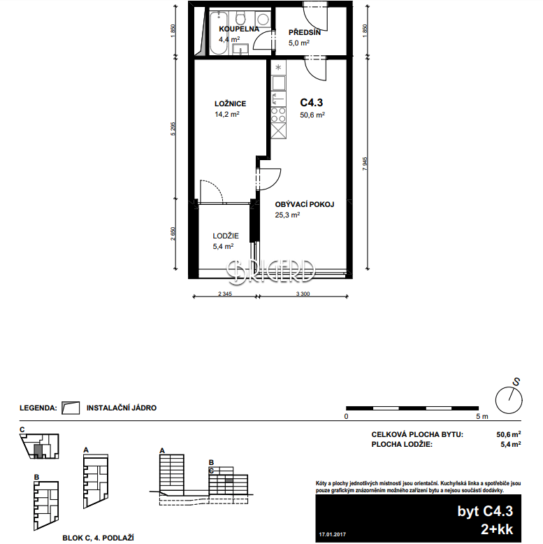
Компания BRIGERD предлагает на продажу квартиру 2+кк  площадью  50,6 м2 с лоджией 5,4 м2 в эксклюзивном жилом комплексе «Плаза» со сроком сдачи осень 2019 года. Данный проект клубного типа, полностью соответствующий стандартам современной городской жизни, находится прямо у станции метро Стрижков (Střížkov), в зеленом районе с хорошей инфраструктурой, в 15 минутах езды от центра.

ЖК «Плаза» представляет собой три отдельно стоящих корпуса (A, B, C). Предлагаемая квартира находится на 4 этаже корпуса С и выходит на юго-восток.

Из прихожей (5 м2) вы попадаете в ванную с туалетом (4,4 м2), гостиную (25,3 м2) с заготовкой для кухонного гарнитура, а оттуда уже в спальню (14,2 м2) с выходом на лоджию (5,4 м2).

Благодаря особенности рельефа из окон большинства квартир открывается панорамный вид на центр Праги, что в сочетании с топ материалами, используемыми в рамках премиум отделки, значительно выделяет данный ЖК среди конкурирующих. Уже в стандартном исполнении в квартире установлены французские окна, двери от фирмы Sapeli, положен пол из деревянного массива.

Район Стрижков - это место с отлично развитой инфраструктурой (магазинами, ресторанами, поликлиникой, школами) и  зелеными парками. Он идеально подойдет для комфортной городской жизни всей семьей.

На нижнем этаже жилого комплекса планируется открыть гипермаркет, принадлежащий международной сети магазинов Lidl. В остальных коммерческих помещениях появятся кафе, магазины, салоны.

При покупке налог в размере 4% НЕ ПЛАТИТСЯ.

При желании к квартире можно докупить парковочное место в гараже за 363 000 чешских крон.

Цена квартиры 4 750 000 чешских крон включая все расходы, связанные с оформлением.

Praha 8, Střížkovská 3/110

Напишите нам